TEE F-F-S

TEE F-F-S

类别 :柔性

发送查询

下载 PDF

产品详情

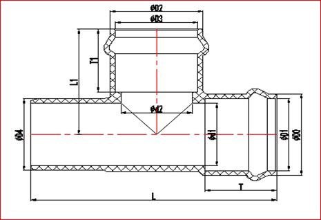
Size(De)Dimension(mm)
D0D1D2D3D4d1d2T1TL1L
110125.70 111.50 125.70 111.50 110.20 108.00 108.00 122.00 122.00 202.50 405.00 
160181.50 162.30 181.50 162.30 160.30 158.00 158.00 141.00 141.00 236.50 485.00 
200225.00 202.50 225.00 202.50 202.20 197.00 197.00 152.00 152.00 270.00 555.00 
225251.50 227.50 251.50 227.50 225.30 221.00 221.00 139.00 139.00 288.00 595.00 
250276.50 252.30 276.50 252.30 250.30 247.00 247.00 152.00 152.00 312.00 640.00 
315347.80 318.30 347.80 318.30 315.20 312.00 312.00 198.00 198.00 393.00 785.00 
160*110181.50 162.30 125.70 111.50 160.30 158.00 108.00 122.00 141.00 220.00 450.00 
200*110225.00 202.50 125.70 111.50 202.20 197.00 108.00 122.00 152.00 240.00 495.00 
200*160225.00 202.50 181.50 162.30 202.20 197.00 158.00 141.00 152.00 250.00 515.00 
225*110251.50 227.50 125.70 111.50 225.30 221.00 108.00 122.00 139.00 263.00 485.00 
225*160251.50 227.50 181.50 162.30 225.30 221.00 158.00 141.00 139.00 290.00 520.00 
250*110276.50 252.30 125.70 111.50 250.30 247.00 108.00 122.00 152.00 275.00 515.00 
250*160276.50 252.30 181.50 162.30 250.30 247.00 158.00 141.00 152.00 302.00 538.00 
250*200276.50 252.30 225.00 202.50 250.30 247.00 197.00 152.00 152.00 228.00 555.00 
315*110347.80 318.30 125.70 111.50 315.20 312.00 108.00 122.00 198.00 317.00 595.00 
315*160347.80 318.30 181.50 162.30 315.20 312.00 158.00 141.00 198.00 336.50 625.00 
315*200347.80 318.30 225.00 202.50 315.20 312.00 197.00 152.00 198.00 393.00 660.00 


图纸.jpg

热门标签:纸盒珠宝礼盒,制造商, 供应商, 批发,购买,工厂,定制,免费样品,中国,便宜,最新,质量, 先进的

产品标签

相关类别

发送查询

请随时以下面的表格提出您的查询。我们将在24小时内回复您。

相关产品

颜色选择器

原色
红色
橙色
黄色
绿色
青色
蓝色
紫色